Construction d’une maison (coefficient Bbio 45.4) et aménagement de son jardin.
Située à Rennes en zone inondable à proximité du quai Saint- Cast, la maison s'inscrit dans un ensemble de constructions hétérogène où 2 échelles cohabitent. Un front de maisons individuelles qui n’excèdent pas 2 étages fait face à des immeubles dont les attiques culminent 4 étages plus haut.
● Projet | Maison individuelle |
● Localisation | Rennes (35) |
● Date | 2014 — 2016 |
● Surface utile | 200 m2 |

↑ Bâtiment avant travaux

Une rehausse nécessaire du niveau d’habitation à 1.30 mètre au-dessus du niveau de la chaussée imposée par le PPRI (plan de prévention des risques d'inondation) ; une surface d'implantation autorisée limitée à 40% de la superficie foncière des 215m²; une géométrie de parcelle lamellaire et anguleuse qui s'étire depuis la rue d'Est en Ouest; un alignement sur rue imposé et un gabarit autorisé permettant une hauteur de construction de 14 mètres : ces contraintes et caractéristiques n'ont pas découragé les maîtres d'ouvrage à engager la réalisation de leur projet de maison familiale.
Au contraire, toutes ces difficultés ont nourri un projet qui tire sa particularité d'une acceptation assumée des contraintes du site.
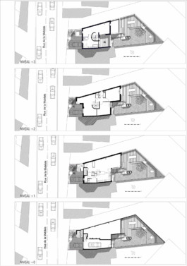
La maison se répartit sur 5 niveaux. Le premier niveau légèrement encaissé est dédié au stationnement. Le deuxième, niveau de l'entrée, surélevé à 1.30 mètre est occupé par l'espace commun. Les étages 2 et 3 sont respectivement attribués aux enfants et aux parents. Un dernier niveau aménageable sert de grenier.
La volumétrie verticale sur rue se nuance suivant deux alignements. Au premier plan, un volume saillant prolonge le pignon Nord de la maison et se raccorde à l'alignement et à l'altimétrie de sa voisine mitoyenne tout en abritant le perron surélevé de l'entrée. Au second plan, la façade s’élève jusqu’à atteindre la hauteur maximale fixée par le PLU et se prolonge par un versant de toiture qui épouse les limites du gabarit autorisé. A l'Est côté jardin la déclinaison de volumes cubiques étire le pignon Nord et permet, grâce au retrait d'alignement latéral, une double orientation Sud et Est des façades. L'aménagement du jardin prolonge cette déclinaison graduelle de plans successifs en s'appuyant sur la géométrie de ses limites.
La maison est édifiée suivant un mode constructif mixte. L'escalier et le perron de l'entrée, les soubassements et le premier niveau sont maçonnés et servent d'assise à une structure à ossature en bois. Une vêture en métal thermolaqué gris métallisé, lisse et à cannelure, alterne afin de capter les variations de reflet, d'ombre et de lumière, et tendre ainsi vers le plus d’immatérialité.








● Documents graphiques



● Étapes de construction




Projet suivant
Construction d’une maison (coefficient Bbio 45.4) et aménagement de son jardin.
Située à Rennes en zone inondable à proximité du quai Saint- Cast, la maison s'inscrit dans un ensemble de constructions hétérogène où 2 échelles cohabitent. Un front de maisons individuelles qui n’excèdent pas 2 étages fait face à des immeubles dont les attiques culminent 4 étages plus haut.
● Projet | Maison individuelle |
● Localisation | Rennes (35) |
● Date | 2014 — 2016 |
● Surface utile | 200 m2 |

↑ Bâtiment avant travaux









● Documents graphiques



● Étapes de construction




Projet suivant