Restructuration et extension d'une maison – Conception et aménagement du jardin – Création d'une serre de culture
La maison existante s’inscrit dans un contexte pavillonnaire au Sud de Rennes. Edifiée entre 1930 et 1935, elle participe à l'alignement de la rue Saint Blaize visible sur le plan de la ville de 1919. Afin de préserver l’essentiel de la maison existante, le projet d'extension s'appuie sur la conservation de ses 3 murs en pierres et préserve le profil de sa toiture. Côté rue, la façade est modifiée.
● Projet | Maison individuelle |
● Localisation | Rennes (35) |
● Date | 2015 — 2017 |
● Surface utile | 180 m2 + Serre 25 m2 |

↑ Bâtiment avant travaux

La baie centrale s’étire verticalement au Sud. Cette verticalité associée au garde-corps existant soigneusement rénové confère à l’ensemble une référence de style « art décoratif ». Une porte de garage créée et un enduit conforme au traitement des encadrements existants complètent le dispositif sous une toiture en forme de demi-croupe surlignée par une nouvelle rive en zinc.
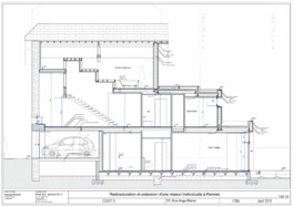
Côté jardin, l’extension s'adosse à la façade existante reconstruite et décline une volumétrie graduelle à plusieurs altimétries dans la pleine largeur du terrain. Deux terrasses accessibles offrent, selon leur hauteur, un rapport plus ou moins lointain sur la ville quand le rez de jardin largement vitré permet un accès de plain-pied au jardin.
Une serre de culture de métal et de verre située en fond de parcelle insert le nouveau jardin dans un entre deux.








● Documents graphiques



● Étapes de construction




Projet suivant
Restructuration et extension d'une maison – Conception et aménagement du jardin – Création d'une serre de culture
La maison existante s’inscrit dans un contexte pavillonnaire au Sud de Rennes. Edifiée entre 1930 et 1935, elle participe à l'alignement de la rue Saint Blaize visible sur le plan de la ville de 1919. Afin de préserver l’essentiel de la maison existante, le projet d'extension s'appuie sur la conservation de ses 3 murs en pierres et préserve le profil de sa toiture. Côté rue, la façade est modifiée.
● Projet | Maison individuelle |
● Localisation | Rennes (35) |
● Date | 2015 — 2017 |
● Surface utile | 180 m2 + Serre 25 m2 |

↑ Bâtiment avant travaux









● Documents graphiques



● Étapes de construction




Projet suivant