La maison existante est au centre d’un alignement sur rue remarquable de trois maisons semblables, caractéristiques de la maison rennaise des années 30. Afin de ne pas modifier l’homogénéité urbaine de cet ensemble, le projet d’extension n’est pas perceptible depuis la rue et se déploie coté jardin dans la continuité du corps existant.
● Projet | Maison individuelle |
● Localisation | Rennes (35) |
● Date | 2008 — 2011 |
● Surface utile | 250 m2 |

↑ Bâtiment avant travaux

Le contraste volontaire entre une volumétrie épurée et le caractère minéral et massif de l’existant procède d’une intention de lisibilité des deux entités. Sans prééminence, l’extension déploie des inclinations attentives aux rythmes des ouvertures et à la modénature préexistants.
Dans cette logique, en rez de jardin un ancrage maçonné et un long bandeau vitré étire et prolonge le soubassement des murs de pierre. A l’étage, pour profiter d’un ensoleillement ouest et oblique à l’alignement, le volume de l’extension se décline par le porte à faux de trois redents successifs captant ainsi le paysage lointain des jardins du Thabor et un large rayonnement. Au dernier étage, un volume en attique se décale de l’axe de symétrie existant, permettant une lecture de la toiture de tuiles en forme de demi croupe et de l’encadrement de baie.
Elaborée sur le principe d’une mixité constructive, le béton lasuré du soubassement sert d’assise à un dispositif de structure à ossature bois isolé sur les deux faces. Les parements extérieurs – stratifié compact, bardage bois non traité et zinc – s’accordent pour mieux révéler la façade existante.






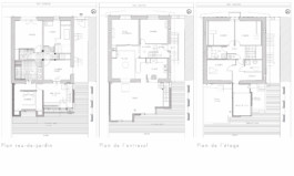
● Documents graphiques


● Étapes de construction



Projet suivant
La maison existante est au centre d’un alignement sur rue remarquable de trois maisons semblables, caractéristiques de la maison rennaise des années 30. Afin de ne pas modifier l’homogénéité urbaine de cet ensemble, le projet d’extension n’est pas perceptible depuis la rue et se déploie coté jardin dans la continuité du corps existant.
● Projet | Maison individuelle |
● Localisation | Rennes (35) |
● Date | 2008 — 2011 |
● Surface utile | 250 m2 |

↑ Bâtiment avant travaux

Le contraste volontaire entre une volumétrie épurée et le caractère minéral et massif de l’existant procède d’une intention de lisibilité des deux entités. Sans prééminence, l’extension déploie des inclinations attentives aux rythmes des ouvertures et à la modénature préexistants.
Dans cette logique, en rez de jardin un ancrage maçonné et un long bandeau vitré étire et prolonge le soubassement des murs de pierre. A l’étage, pour profiter d’un ensoleillement ouest et oblique à l’alignement, le volume de l’extension se décline par le porte à faux de trois redents successifs captant ainsi le paysage lointain des jardins du Thabor et un large rayonnement. Au dernier étage, un volume en attique se décale de l’axe de symétrie existant, permettant une lecture de la toiture de tuiles en forme de demi croupe et de l’encadrement de baie.
Elaborée sur le principe d’une mixité constructive, le béton lasuré du soubassement sert d’assise à un dispositif de structure à ossature bois isolé sur les deux faces. Les parements extérieurs – stratifié compact, bardage bois non traité et zinc – s’accordent pour mieux révéler la façade existante.






● Étapes de construction


● Documents graphiques



Projet suivant